弹簧自闭式泄爆阀结构形式是怎样的?
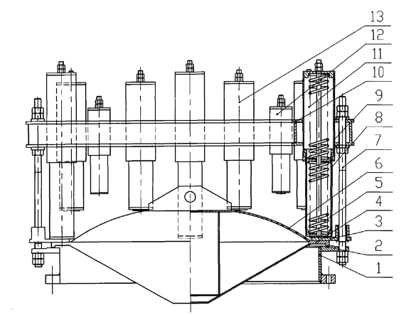
2022-07-05 关注次数:弹簧自闭式泄爆阀通常安装在钢厂转炉干式除尘器的入口和出口。弹簧自闭式泄爆阀通常在包括阀体的结构中采用三级防爆阀。阀体配有阀盘。阀盘使用锥形表面(用于平衡爆炸压力)。具有圆形边缘,在环表面和阀体之间安装一个硅橡胶密封圈,并在阀体和阀体裂缝上安装一个接触开关,以检测阀是否打开。
弹簧自闭式泄爆阀支架通过螺母,多个一级螺旋弹簧缸,二级弹簧缸以及多个一级螺旋弹簧缸,二级弹簧固定在阀体上。

在三级弹簧缸的情况下,一级弹簧缸的底表面与阀盘的环形表面直接接触,并且次级弹簧缸与三级弹簧缸之间的距离为在阀阀的环形表面上的L1和L2分别大于L2、两级和两级弹簧缸由一个外套管,一个内套管和一个圆柱形螺旋弹簧组成。内套筒可以滑动。外套。圆柱形螺旋弹簧连接在外套管和内套管之间。弹簧),外套管固定在支架上。
在阀瓣端部的圆形平面外侧还固定有多个导向套,导向套的一端套在螺杆上,而两个则是缝隙配合的。
自闭式泄爆阀相关文章
- 自闭式泄爆阀:保护工业安全的创新技术
自闭式泄爆阀是工业安全领域的创新技术,能在检测到异常压力时自动开启泄压,随后自行关闭,无需人工干预,…
- 自闭式泄爆阀:瞬间应变,压力无忧
在众多工业生产与储存设施中,稳定防护措施至关重要,其中自闭式泄爆阀作为一种主动防御设备,承担着保护系…
- 自闭泄爆阀,瞬间压力守护者
自闭式泄爆阀,作为压力容器和管道系统中的关键安全组件,被誉为“瞬间压力守护者”。在工业生产过程中,面…
- 如何根据工艺流程、介质特性和环境条件来选择合适的自闭式泄爆阀类型?
根据工艺流程中可能出现的最大压力和流量需求,选择合适的自闭式泄爆阀类型和规格。确保自闭式泄爆阀的承压…
- 自闭式泄爆阀如何在压力超载情况下快速释放压力?
在压力超载情况下,自闭式泄爆阀通过以上设计和工作原理的配合,能够快速、有效地释放压力,保护系统的安全…
- 自闭式泄爆阀的设计与发展趋势
从设计角度来看,自闭式泄爆阀的设计需考虑多种因素,包括压力范围、介质性质、流量要求等。针对不同的工业…
- 自闭式泄爆阀的工作原理与应用
自闭式泄爆阀采用先进的设计原理,通过感应管或传感器监测管道系统内的压力变化。当管道系统的压力超过预设…
- 自闭式泄爆阀的工作原理与维护保养
?自闭式泄爆阀是一种重要的安全设备,在工业生产中起到预防和控制容器或管道的过压和过真空现象的作用。为…
- 自闭式泄爆阀:保护设备和人员安全的重要组件
?自闭式泄爆阀是一种常见的安全阀装置,被广泛应用于各种工业领域,以保护设备和人员的安全。本文将重点介…
- 自闭式泄爆阀的应用及优点
?自闭式泄爆阀是一种常见的安全设备,广泛应用于各行业的压力容器和管道系统中。它能够在系统压力过高时迅…
